À vendre sur Nandrin
Magnifique villa située dans un clos, en recul de la route, composé de 5 habitations proches de toutes les commodités
Nandrin Lot 1
Clé sur porte
Prix HTVA, hors frais.
Gros œuvre fermé
Prix HTVA, hors frais.
- 195 m² (murs compris)
- 566 m² de terrain
- 3 chambres dont une suite parentale avec espace dressing
- 2 salles de bains
- WC séparés
- Garage 1 voiture
- Briques sans joint
- Finitions haut de gamme
- Pompe à chaleur avec chauffage sol
- Panneaux photovoltaïques
- Châssis PVC et aluminium
- Citerne d'eau de pluie de 10.000 L
- VMC double flux
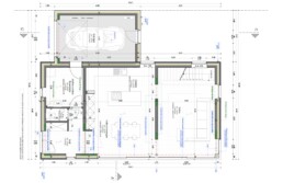
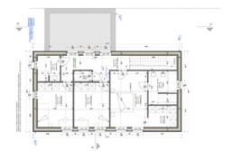
Description de la maison :
Située dans un clos, en recul de la route, composé de 5 habitations proches de toutes les commodités, maison 4 façades en gros œuvre fermé ou clé sur porte composé de : hall d’entrée, WC séparé, spacieux et lumineux séjour, cuisine ouverte sur la salle à manger, buanderie, garage une voiture, hall de nuit, une suite parentale avec dressing et salle de bain, 2 chambres, une salle de douche et un WC séparé.
Citerne d’eau de pluie de 10.000 L, maçonnerie sans joint, châssis en PVC et ALU.
Cahier des charges et liste de prix détaillée sur demande.
Frais supplémentaires à prévoir :
- Prix affiché pour la maison HTVA (+21%)
- Hors frais de raccordement > 6500,00 € HTVA (+21%)
- Hors frais de Notaire
- Hors peinture et sol dans les chambres
- Haies voisines et barrières végétales à planter
Vivez le charme de Nandrin
Situé dans un quartier convivial, proche de la nature et loin du stress, découvrez un cadre de vie paisible et verdoyant, où chaque maison est pensée pour votre confort et votre bien-être.


Construire pour aujourd’hui, penser pour demain
Matériaux durables, panneaux photovoltaïques, isolation performante… nos maisons allient confort moderne et respect de l’environnement. Un investissement responsable, pour une vie sereine et un avenir maîtrisé.








